Montpellier (34000) Réduisez fortement vos impôts avec une adresse patrimoniale au cœur de Montpellier | Loi Malraux

Réf : PILA201 205 000 €

Investir dans l’immobilier ancien avec un avantage fiscal important tout en se constituant un patrimoine de qualité est une opportunité rare.


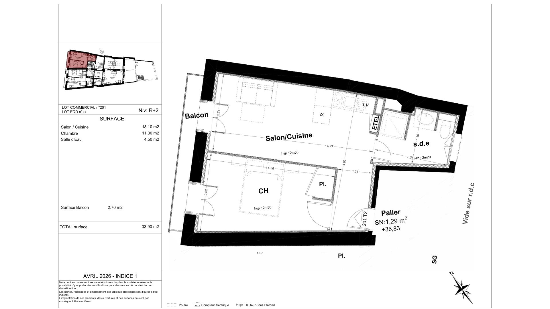
Situé au 16 rue du Pila Saint-Gély à Montpellier, ce T2 de 34 m² avec balcon de 2,7 m² offre un emplacement privilégié en plein centre historique, dans un secteur patrimonial recherché, éligible au dispositif Malraux.


Cette opération permet de bénéficier d’une réduction d’impôt estimée à environ 43 000 €, grâce aux travaux de réhabilitation.


Concrètement :


30 % du montant des travaux sont déduits de votre impôt sur 2 ou 3 ans, avec un excédent reportable pendant 3 ans.


Au-delà de l’avantage fiscal, cet investissement réunit plusieurs atouts majeurs : un emplacement rare au cœur de l’Écusson, un bien à forte valeur patrimoniale, une rénovation complète et une perspective de valorisation durable.


Ce produit est fait pour vous si :


Vous payez plus de 8 000 à 10 000 € d’impôts par an

Vous souhaitez vous constituer un patrimoine immobilier dans un secteur classé et valorisant

Vous recherchez une solution clé en main, sans gestion des travaux

Vous avez une vision long terme de votre patrimoine


Pour obtenir les plans, les informations fiscales détaillées ou réaliser une étude patrimoniale personnalisée, contactez-nous.

Contact
Arnaud BOUSQUET
contact@casae.fr
06 58 19 49 58

TRAD_SIROCCO_Caracteristique Valeurs
Code postal 34000
Surface habitable (m²) 34 m²
Nombre de chambre(s) 1
Nombre de pièces 2
Etage 2
Ascenseur NON
TRAD_SIROCCO_Caracteristique Valeurs
Nb de salle d'eau 1
Cuisine Kitchenette
Type de cuisine SEMI-EQUIPEE
Interphone OUI
Visiophone OUI
Balcon OUI
Loggia NON
Terrasse NON
Murs mitoyens 1
Cave NON
Quartier ecusson, Les beaux arts
TRAD_SIROCCO_Caracteristique Valeurs
Copropriété OUI
Lot n° 201
nombre de lots 10
TRAD_SIROCCO_Caracteristique Valeurs
Prix de vente honoraires TTC inclus 205 000 €
DPE GES
DPE non concerné
  • Commerces et santé
  • Loisirs
  • Ecoles
  • Transports
  • Pratique

Nos outils

Imprimer
Intéressé(e) par Ce bien ?

* Champ obligatoire

contacter l'agence

Les informations recueillies sur ce formulaire sont enregistrées dans un fichier informatisé par La Boite Immo agissant comme Sous-traitant du traitement pour la gestion de la clientèle/prospects de l'Agence / du Réseau qui reste Responsable du Traitement de vos Données personnelles. La base légale du traitement repose sur l'intérêt légitime de l'Agence / du Réseau. Elles sont conservées jusqu'à demande de suppression et sont destinées à l'Agence / au Réseau. Conformément à la loi « informatique et libertés », vous disposez des droits d’accès, de rectification, d’effacement, d’opposition, de limitation et de portabilité de vos données. Vous pouvez retirer votre consentement à tout moment en contactant directement l’Agence / Le Réseau. Consultez le site https://cnil.fr/fr pour plus d’informations sur vos droits. Si vous estimez, après avoir contacté l'Agence / le Réseau, que vos droits « Informatique et Libertés » ne sont pas respectés, vous pouvez adresser une réclamation à la CNIL. Nous vous informons de l’existence de la liste d'opposition au démarchage téléphonique « Bloctel », sur laquelle vous pouvez vous inscrire ici : https://www.bloctel.gouv.fr Dans le cadre de la protection des Données personnelles, nous vous invitons à ne pas inscrire de Données sensibles dans le champ de saisie libre.
Ce site est protégé par reCAPTCHA, les Politiques de Confidentialité et les Conditions d'Utilisation de Google s'appliquent.

Ces biens peuvent aussi vous intéresser
Montpellier (34000)

T2 de 39 m2 | Centre Historique / Comédie / Gare

Montpellier (34000)

Charmant STUDIO – Centre historique de Montpellier

Nous suivre sur
Prendre Contact
04 67 55 22 94 contact@casae.fr 1 rue Baudin - Place de la Comédie
34000 Montpellier